
Vi bygger Läraregatans gruppbostad
Nytt gruppboende på Lärargatan - Skurholmen
Först rivs befintliga byggnader
De förberedande arbetena med Lärargatans gruppbostad har pågått under åren 2023 och 2024 och nu är vi redo för byggstart. Inom kort börjar vi att riva de befintliga förskolebyggnaderna för att ge plats åt de nya.
Vid alla byggnationer kan det bli en del störningar och vi kommer att genomföra vibrationsmätningar i närheten under större delen av projektet.
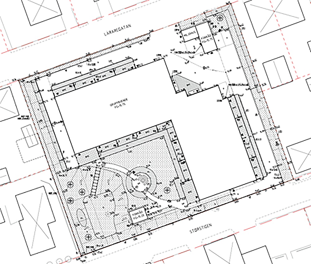
Här bygger vi

Tidplan
- Oktober 2024: Etablering och rivning påbörjas
Oktober 2026: Bygget planeras vara klart
Mer om projektet
På fastigheten Inspektören 2 kommer en gruppbostad med 14 lägenheter att uppföras.

Skiss över den nya gruppbostaden
Fler gruppboenden som byggs under året
Klockarängens gruppboende i Råneå. 7 lägenheter. Färdigställs under juni 2025.
Skogsmyrgatans gruppboende på Hällbacken. 7 lägenheter. Färdigställs i oktober 2025.
Kontakt
Luleå kommuns kundcenter
Öppettider telefon: Måndag–fredag: 08.00–17.00.
lulea.kommun@lulea.se0920-45 30 00
Sidan uppdaterades den 26 september 2025